Hoefweg 88, Bleiswijk

Omschrijving

Ruime twee-onder-een-kapwoning met een ca. 30 m diepe, groene tuin op loopafstand van het dorpscentrum.

Aan een autoluwe weg, gescheiden door water, ligt deze royale twee-onder-een kapwoning, ideaal voor grote gezinnen die op zoek zijn naar ruimte, comfort én een fijne buitenbeleving. Je beschikt hier over een zonnige, diepe achtertuin, meerdere slaapkamers, een eigen oprit voor twee auto's en een garage.

De ligging is perfect: het gezellige dorpscentrum met diverse winkels en supermarkten ligt op loopafstand. Heb je behoefte aan natuur en ontspanning? Op slechts 5 minuten fietsafstand vind je recreatiegebied De Rottemeren, waar je heerlijk kunt wandelen, sporten of genieten van de natuur langs de Rotte.

Kortom: een heerlijk familiehuis met een prachtige tuin, veel leefruimte en een uitstekende ligging.

Pluspunten:
+ Op loopafstand van het gezellige dorp
+ Eigen oprit met ruimte voor 2 auto’s
+ In 2021 gerenoveerd: nieuwe leidingen, nieuwe meterkast, aansluiting voor laadpaal en nieuwe radiatoren
+ Nieuwe keuken en badkamer (2021)
+ Kunststof kozijnen met HR++ glas (2021)
+ Volledig geïsoleerd, met uitzondering van de gevels
+ Alle wanden en plafonds strak gestuct

Indeling

Begane grond:
Via de nieuw aangelegde voortuin bereik je de ruime oprit, voorzien van een oplaadpunt voor
een elektrische auto, met plek voor twee auto's en toegang tot de garage.

Je komt binnen in de hal met granieten vloer. Hier vind je de meterkast, toilet en toegang tot de woonkamer, de eerste verdieping en het souterrain.

De sfeervolle woonkamer aan de voorzijde is voorzien van een prachtige vissengraatvloer en een gezellige gaskachel.
De keuken is in 2021 vernieuwd en ligt aan de achterzijde van de woning. Deze moderne keuken met kookeiland is uitgerust met een 5-pits inductiekookplaat, afzuigkap, oven, kokendwaterkraan en een koel-vriescombinatie. Over de volledige breedte van zowel de voor- als achterzijde zijn elektrische zonneschermen geplaatst.

Souterrain:
Via de hal is het souterrain bereikbaar, dat zich onder de gehele woning inclusief de garage bevindt. Dit biedt verrassend veel extra ruimte en is onder andere voorzien van de opstelplaats van de cv-ketel (november 2025).

Achtertuin:
Via zowel de woonkamer, middels de schuifpui, als via de keuken heb je toegang tot de prachtige, diepe achtertuin. De tuin is met veel zorg aangelegd en biedt een fijne combinatie van groen, rust en privacy. Er staan diverse planten, struiken en volwassen bomen, wat zorgt voor een natuurlijke en sfeervolle uitstraling.

Je beschikt over een ruim terras en een gezellige overkapping, waardoor je hier op elk moment van de dag heerlijk kunt zitten. Hier vind je ook een bergruimte doorlopend onder de garage voor het opbergen van bijvoorbeeld de grasmaaier en tuingereedschap.
Achter in de tuin bevindt zich een kinderboerderijtje met konijnen en kippen, een nachtverblijf en een omheinde buitenruimte.
Daarnaast zijn er recent nieuwe schuttingen geplaatst en is er een achterom.
Vanuit de tuin heb je toegang tot de garage en een aparte wasruimte/berging. In de wasruimte vind je een grote wasbak, een extra koel-vriescombinatie en de aansluitingen voor de wasmachine en droger.

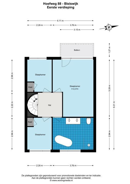
Eerste verdieping:
Overloop met toegang tot de luxe badkamer en de 3 slaapkamers.
Slaapkamer 1, ruime ouderslaapkamer aan de achterzijde met toegang tot het balkon en prachtig uitzicht over de tuin.
Slaapkamer 2, gelegen aan de achterzijde en voorzien van een vaste kast.
Slaapkamer 3, gelegen aan de voorzijde en eveneens voorzien van een vaste kast.
De gehele verdieping is voorzien van een doorlopende laminaatvloer en elektrische
rolluiken aan de tuinzijde.

De badkamer is in 2021 vernieuwd en beschikt over een marmeren vloer, dubbele
wastafel met meubel, vrijstaand ligbad, inloopdouche en toilet.

Tweede verdieping:
De tweede verdieping biedt een ruime vierde slaapkamer met een kunststof dakkapel aan zowel de voor- als achterzijde, elektrische rolluiken en veel daglicht dankzij de grote raampartijen.

Bijzonderheden:
- Bouwjaar 1961
- Gelegen aan door water gescheiden autoluwe straat;
- Bewateringsysteem vanuit het water aan de voorkant naar de tuin;
- Oplevering in overleg, conform Lijst van Zaken.

In de koopovereenkomst worden de volgende extra clausules opgenomen:
- ouderdomsclausule (standaard bij woningen die ouder zijn dan 30 jaar);
- asbestclausule (standaard bij woningen die gebouwd zijn voor 1993).

Wij nodigen je van harte uit om deze op een toplocatie gelegen gezinswoning met eigen ogen te bewonderen.

Alle verstrekte informatie moet beschouwd worden als een uitnodiging tot het doen van een bod of om in onderhandeling te treden. De teksten en impressies zijn bedoeld om een goede indruk te geven van het object. Aan de inhoud ervan is de grootst mogelijke zorg besteed. Desondanks is alle informatie nadrukkelijk onder voorbehoud. Er kunnen geen rechten worden ontleend aan deze woninginformatie.

Koopovereenkomst pas rechtsgeldig na ondertekening:
Een mondelinge overeenstemming tussen de particuliere verkoper en de particuliere koper is niet rechtsgeldig. Met andere woorden: er is geen koop. Er is pas sprake van een rechtsgeldige koop als de particuliere verkoper en de particuliere koper de koopovereenkomst hebben ondertekend. Dit vloeit voort uit artikel 7:2 Burgerlijk Wetboek. Een bevestiging van de mondelinge overeenstemming per e-mail of een toegestuurd concept van de koopovereenkomst wordt overigens niet gezien als een 'ondertekende koopovereenkomst'.

Toelichtingsclausule Meetinstructie:
De woning is conform de Branchebrede Meetinstructie (BBMI) opgemeten. De Meetinstructie is bedoeld om een meer eenduidige manier van meten toe te passen voor het geven van een indicatie van de gebruiksoppervlakte. De Meetinstructie sluit verschillen in meetuitkomsten niet volledig uit, door bijvoorbeeld interpretatieverschillen, afrondingen of beperkingen bij het uitvoeren van de meting.

Wij zijn de makelaar van verkoper. Wij adviseren je jouw eigen makelaar mee te nemen voor jouw belangenbehartiging bij de aankoop van jouw toekomstige huis!

Kenmerken

Aanvaarding
Prijs
€ 725.000 k.k.
Status
Beschikbaar
Oplevering
In overleg
Adres
Hoefweg 88
Postcode
2665 CG
Plaats
Bleiswijk
Bouw
Soort woonhuis
Eengezinswoning, Geschakelde 2-onder-1-kapwoning, Dijkwoning
Soort bouw
Bestaande bouw
Bouwjaar
1961
Onderhoud binnen
Goed
Onderhoud buiten
Goed
Oppervlakten en inhoud
Woonoppervlakte
ca. 133m²
Perceeloppervlakte
ca. 398m²
Overig oppervlakte
ca. 18m²
Inhoud
ca. 540m³
Indeling
Aantal kamers
6
Aantal slaapkamers
4
Aantal badkamers
1
Aantal verdiepingen
3
Voorzieningen
Rolluiken, Buitenzonwering, Schuifpui, Dakraam
Energie
Energielabel
C
Isolatie
Vloerisolatie, HR-glas
Warm water
C.V.-ketel
Verwarming
C.V.-ketel
Ketel
Nefit (2025, Combi-ketel, Eigendom)
Buitenruimte
Ligging
Aan het water, In centrum, In woonwijk
Tuin
Achtertuin, Voortuin
Achtertuin
West, 269m², 959×2809cm
Schuur
Aangebouwd steen
Garage
Soort garage
Aangebouwd steen
Capaciteit
1

Plattegronden

Bekijk verloop van de zon

Uw browser ondersteunt geen WebGL

Locatie

[{"address": "Hoefweg88","zipCode": "2665 CG","city": "Bleiswijk","lat": 52.0158159,"lng": 4.5321267,"heading": 0,"pitch": 0}]

Wilt u meer informatie of een afspraak maken?

Bel 010 - 785 08 33, mail of gebruik het onderstaande formulier om contact met ons op te nemen.

Uw bericht is naar ons verzonden. Wij nemen zo snel mogelijk contact met u op.

Sorry, we kunnen helaas niet met zekerheid vaststellen of u een mens of een geautomatiseerde bot/spammer bent. Hierdoor kunnen we het formulier dat u heeft ingevuld niet verzenden. Probeer het opnieuw of neem direct contact op met de makelaar via e-mail.

Er is iets mis gegaan met het versturen van het formulier.
Controleer of u alle velden (goed) heeft ingevoerd en probeer het nog een keer.

Bij het verzenden van dit formulier geef ik toestemming mijn gegevens te verwerken op de manier zoals omschreven in het privacy statement.
recaptcha
reCAPTCHA
PrivacyTerms
van

Goedemorgen 👋

Benieuwd naar de waarde van uw huis?

U weet het al binnen 1 minuut. Laten we beginnen!

Wat is de reden van uw aanvraag?
Ik wil graag...

Er zijn meerdere antwoorden mogelijk.

Wanneer wilt u verhuizen?

We zijn er bijna 🎉

Om het rapport op te maken hebben we een aantal gegevens nodig

recaptcha
reCAPTCHA
PrivacyTerms

Uw woningwaarde wordt berekend... 🚀

loading

Bedankt %name%! De woningwaarde van %address% is berekend 🥳

Check uw mail voor het rapport!

success
Wat is mijn huis waard?