Heijermansplein 220, Schiedam

Omschrijving

Prachtig, modern afgewerkt 4-kamerappartement gelegen in de rustige en kindvriendelijke wijk ‘Woudhoek’.
Dit appartement is volledig gerenoveerd, waardoor je er werkelijk niets meer aan hoeft te doen!

Het luxe appartement beschikt over een ruime en sfeervolle woonkamer, een moderne leefkeuken met kookeiland, drie slaapkamers, een stijlvolle badkamer en een balkon.

De woning is gelegen in een groene omgeving en bevindt zich op loopafstand van diverse winkels, horecagelegenheden en openbaar vervoer. Ook uitvalswegen, scholen en sportvoorzieningen liggen op korte afstand. Daarnaast bevindt het prachtige Natuur- & Recreatiegebied Midden-Delfland zich in de directe nabijheid.

Indeling

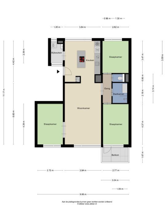
Begane grond:
Afgesloten entree met brievenbussen. De ruime berging bevindt zich op de begane grond en is bereikbaar via de straatzijde. Trappenhuis naar de tweede verdieping.

Tweede verdieping:
Bij binnenkomst stap je direct de moderne leefkeuken in. De keuken is voorzien van een kookeiland met bar en diverse inbouwapparatuur, waaronder een inductiekookplaat, afzuigkap, vaatwasser, oven, combi-oven en een koel-/vriescombinatie.

Aangrenzend bevindt zich de praktische bijkeuken met veel bergruimte, aansluitingen voor de wasmachine en droger, en de opstelplaats van de cv-ketel.

De sfeervolle woonkamer staat in open verbinding met de keuken en is gelegen aan de achterzijde van de woning. Vanuit de woonkamer is er via twee openslaande stalen deuren toegang tot een extra kamer, momenteel in gebruik als werkkamer.

Via de woonkamer bereik je de hal met separaat toilet en toegang tot de overige vertrekken.

Slaapkamer 2 (ca. 3,47 x 2,82 m) bevindt zich aan de voorzijde
Slaapkamer 3 (ca. 4,37 x 3,04 m) bevindt zich aan de achterzijde en biedt toegang tot het balkon, gelegen op het westen
De moderne badkamer is voorzien van een douche, dubbele wastafel en een designradiator.

Bijzonderheden:
- Bouwjaar 1974, woonoppervlakte 93m²
- Volledig gerenoveerd
- Gelegen op erfpachtgrond, afgekocht tot 1 juli 2049
- Geheel voorzien van kunststof kozijnen met dubbele beglazing
- Actieve vereniging van eigenaars, maandelijkse bijdrage € 140,14
- Oplevering in overleg, conform Lijst van Zaken.

Wij nodigen je van harte uit om dit prachtige appartement met eigen ogen te bewonderen.

Alle verstrekte informatie moet beschouwd worden als een uitnodiging tot het doen van een bod of om in onderhandeling te treden. De teksten en impressies zijn bedoeld om een goede indruk te geven van het object. Aan de inhoud ervan is de grootst mogelijke zorg besteed. Desondanks is alle informatie nadrukkelijk onder voorbehoud. Er kunnen geen rechten worden ontleend aan deze woninginformatie.

Koopovereenkomst pas rechtsgeldig na ondertekening:
Een mondelinge overeenstemming tussen de particuliere verkoper en de particuliere koper is niet rechtsgeldig. Met andere woorden: er is geen koop. Er is pas sprake van een rechtsgeldige koop als de particuliere verkoper en de particuliere koper de koopovereenkomst hebben ondertekend. Dit vloeit voort uit artikel 7:2 Burgerlijk Wetboek. Een bevestiging van de mondelinge overeenstemming per e-mail of een toegestuurd concept van de koopovereenkomst wordt overigens niet gezien als een 'ondertekende koopovereenkomst'.

Toelichtingsclausule Meetinstructie:
De woning is conform de Branchebrede Meetinstructie (BBMI) opgemeten. De Meetinstructie is bedoeld om een meer eenduidige manier van meten toe te passen voor het geven van een indicatie van de gebruiksoppervlakte. De Meetinstructie sluit verschillen in meetuitkomsten niet volledig uit, door bijvoorbeeld interpretatieverschillen, afrondingen of beperkingen bij het uitvoeren van de meting.

Kenmerken

Aanvaarding
Prijs
€ 369.500 k.k.
Bijdrage VVE
€ 140
Status
Beschikbaar
Oplevering
In overleg
Adres
Heijermansplein 220
Postcode
3123 LL
Plaats
Schiedam
Bouw
Soort appartement
Portiekflat, Appartement
Woonlaag
2
Soort bouw
Bestaande bouw
Bouwjaar
1974
Onderhoud binnen
Goed
Onderhoud buiten
Goed
Oppervlakten en inhoud
Woonoppervlakte
ca. 93m²
Inhoud
ca. 306m³
Indeling
Aantal kamers
4
Aantal slaapkamers
3
Aantal badkamers
1
Aantal verdiepingen
1
Voorzieningen
Mechanische ventilatie, TV-Kabel, Glasvezel kabel
Energie
Energielabel
C
Isolatie
Dubbel glas
Warm water
C.V.-ketel
Verwarming
C.V.-ketel
Ketel
Ferroili (2010, Combi-ketel, Eigendom)
Buitenruimte
Ligging
In woonwijk
Schuur
Box
Faciliteiten schuur
Voorzien van elektra

Plattegronden

Bekijk verloop van de zon

Uw browser ondersteunt geen WebGL

Locatie

[{"address": "Heijermansplein220","zipCode": "3123 LL","city": "Schiedam","lat": 51.9388172,"lng": 4.3698914,"heading": 0,"pitch": 0}]

Wilt u meer informatie of een afspraak maken?

Bel 010 - 785 08 33, mail of gebruik het onderstaande formulier om contact met ons op te nemen.

Uw bericht is naar ons verzonden. Wij nemen zo snel mogelijk contact met u op.

Sorry, we kunnen helaas niet met zekerheid vaststellen of u een mens of een geautomatiseerde bot/spammer bent. Hierdoor kunnen we het formulier dat u heeft ingevuld niet verzenden. Probeer het opnieuw of neem direct contact op met de makelaar via e-mail.

Er is iets mis gegaan met het versturen van het formulier.
Controleer of u alle velden (goed) heeft ingevoerd en probeer het nog een keer.

Bij het verzenden van dit formulier geef ik toestemming mijn gegevens te verwerken op de manier zoals omschreven in het privacy statement.
recaptcha
reCAPTCHA
PrivacyTerms
van

Goedenavond 👋

Benieuwd naar de waarde van uw huis?

U weet het al binnen 1 minuut. Laten we beginnen!

Wat is de reden van uw aanvraag?
Ik wil graag...

Er zijn meerdere antwoorden mogelijk.

Wanneer wilt u verhuizen?

We zijn er bijna 🎉

Om het rapport op te maken hebben we een aantal gegevens nodig

recaptcha
reCAPTCHA
PrivacyTerms

Uw woningwaarde wordt berekend... 🚀

loading

Bedankt %name%! De woningwaarde van %address% is berekend 🥳

Check uw mail voor het rapport!

success
Wat is mijn huis waard?